平面圖則
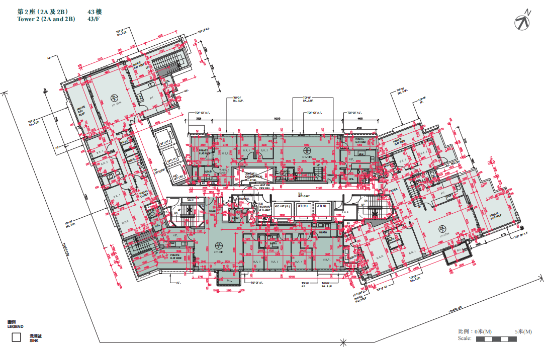
可視化展示樓棟佈局與戶型分佈,突出景觀差異與私密性,輔助高淨值客群選房決策
空間說明
公攤資訊:公攤含電梯廳、設備間、樓層走廊,實用率約 78-82%(符合港島核心區高端住宅常規水平)
特殊規劃:2A 座 18 樓以上為「頂級海景層」(無遮擋瞰深水灣),2B 座 15 樓以上為「全景山景層」,每棟設 2 個貨梯(方便大件物品運送)
景觀層選擇建議:偏好海景選 2A 座高層,偏好山景選 2B 座高層
可視化展示樓棟佈局與戶型分佈,突出景觀差異與私密性,輔助高淨值客群選房決策
公攤資訊:公攤含電梯廳、設備間、樓層走廊,實用率約 78-82%(符合港島核心區高端住宅常規水平)
特殊規劃:2A 座 18 樓以上為「頂級海景層」(無遮擋瞰深水灣),2B 座 15 樓以上為「全景山景層」,每棟設 2 個貨梯(方便大件物品運送)
景觀層選擇建議:偏好海景選 2A 座高層,偏好山景選 2B 座高層